八达岭希尔顿逸林酒店助力北京冬奥

编辑: | 2022-02-25


图片

第24届冬奥会完美收官,作为北京冬奥会官方指定合作酒店之一、由中国建筑设计研究院设计的的八达岭希尔顿逸林酒店也出色完成了冬奥接待工作。

酒店位于素有北京“夏都”之称的延庆城区中心,与八达岭长城、龙庆峡风景区、野鸭湖国家湿地公园的距离都很近,自开业以来先后赢得了“中外酒店(第十六届)白金奖·最受欢迎新开业酒店”奖、“最佳新开业酒店奖”、“年度影响力亲子酒店”等多个酒店专业领域的奖项。

图片

酒店主入口

图片

酒店大堂

虽然旅游资源丰富、交通便利,但酒店原有场地周边情况并不理想。周边建筑在规划和风貌上都存在着历史遗留问题,显得凌乱而拥挤。由于建筑限高24米,周边唯一的公园景致也因邻近建筑遮挡而无缘展现。另一方面,虽然延庆近些年有一批高品质酒店陆续建成,但延庆城区酒店的水平相对较低,政府接待和市民休闲都缺乏就近的去处。仔细的现场探勘后,设计者快速把策略定位在延续延庆记忆、营造内部景观,兼顾赛时接待和赛后服务上。

图片

场地周边环境

虽然设计周期极为紧张,但中国院推行多年的专业化发展发挥了巨大作用。设计团队协助业主梳理了设计和施工的流程,快速引进了通常后置的各种顾问,多个设计团队同时协作,为施工和开业准备争取了宝贵的时间。

图片

酒店设计流程梳理

相对于北京城区,延庆的生活节奏明显要慢得多。1986年建成的延庆宾馆是当时县城里第一家大型现代化酒店,也是延庆百姓重要的集体记忆。现代与中式相结合的风格、围合式的花园,与我们的设计初衷不谋而合。

图片

延庆宾馆

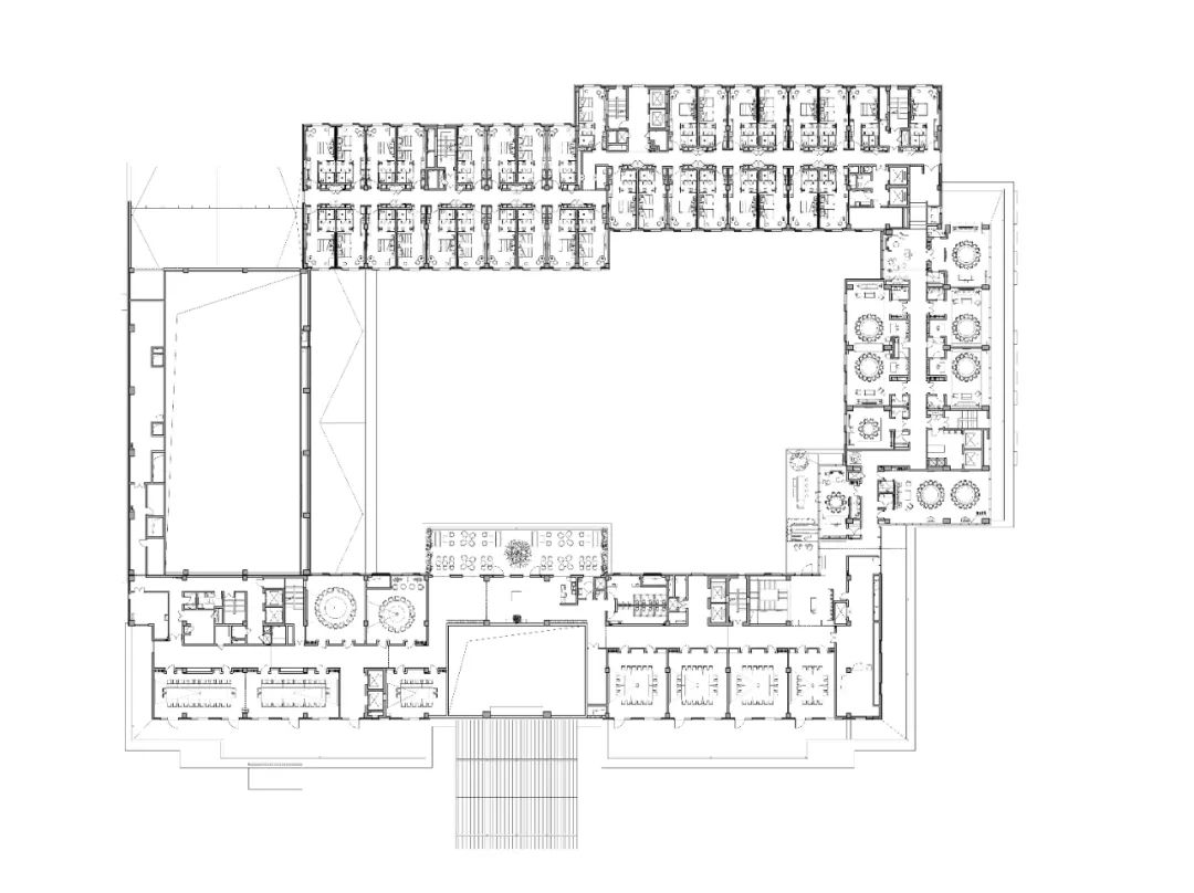
八达岭希尔顿逸林酒店整体采用口字型的布局,既延续了北方民居合院式的传统文脉,又为屏蔽周围不太理想的环境、打造良好的内部景观创造了条件。为了打破比较呆板的轮廓,呼应不规则的用地形状,口字型的角部做了切削和错动,对土地的利用也更加充分,让面积不大的庭院有了更加丰富的层次。

图片


总平面图

院落式布局:外围融入城市氛围,内部打造度假氛围

柔化建筑角部,呼应影院侧体量

体量错落,形成庭院氛围,拓展庭院景观空间


图片


空间序列与层次

酒店的入口和大堂处理得非常低调,以契合整条街的尺度并营造一种家的氛围。大堂也没有追求酒店常见的高大空间,而是以一个坡屋顶勾勒出亲切的氛围,具有书香门第素雅而沉静的气质。

图片

酒店大堂

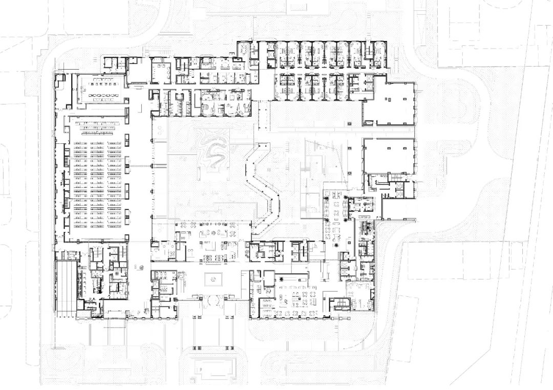
图片

首层平面图

图片

二层平面图

图片

大堂吧

图片

全日餐厅

图片

中餐厅

这种家的氛围弥漫在酒店的各处。客房装修简洁而环保,原木色的家具,以妫川和长城文化元素为主题的拼贴画是为数不多的装饰。如果客人带孩子入住,服务人员就会搭配充满童趣的玩具和床品,营造亲子出游的欢乐气氛。

图片

图片

客房的不同使用场景

为了让酒店在有限的空间和预算条件下更好地满足舒适性和实用性的要求,兼顾赛时与赛后的不同需求,提供完整全面的可持续发展解决方案,我们对每个空间都进行了反复推敲。以宴会厅为例,为了尽可能多的满足各种使用模式需求,设计团队深入研究了延庆区两会的使用人数、会议形式、坐席排布,婚宴的会场布置,以及声学、视线等技术要求,以保证良好的使用效果。

图片

图片

宴会厅

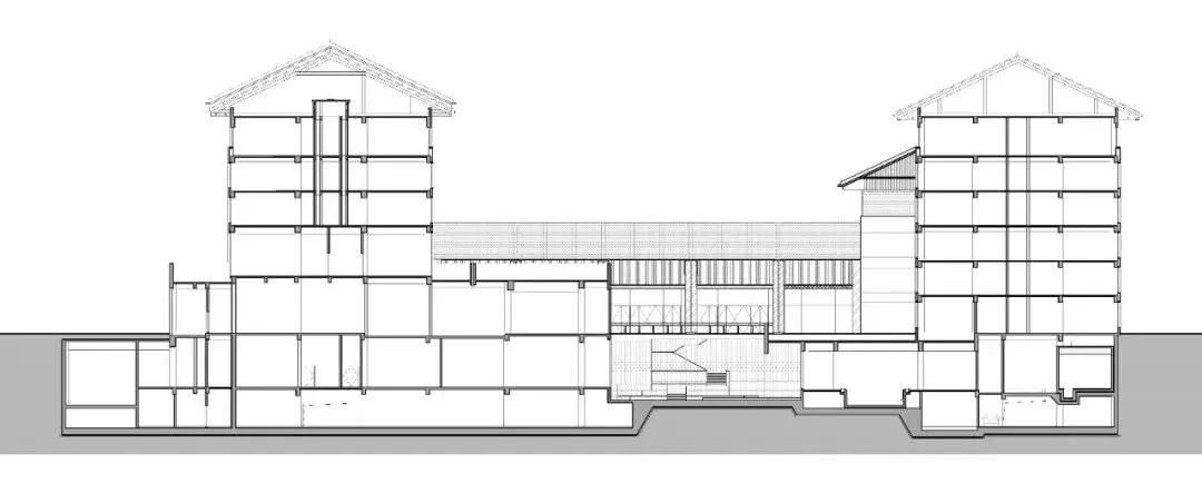
出于环保和绿色的考虑,内院并没有做满铺的地下室。局部的下沉空间在把阳光引入地下空间的同时,也为植物提供了更多的生长土壤和空间。从庭院里看去,建筑变成了景观的框架和故事的背景。

图片

庭院夜景

图片

剖面图

结合下沉庭院布置的儿童乐园、泳池和温泉SPA采光良好,视野开阔,很好地弥补了延庆城区周末短期休闲度假和亲子活动的空白。

图片

游泳池

图片

儿童乐园


建筑面积 51650平方米

客房数量 276间

业主 北京八达岭妫川酒店投资管理中心


设计主持  马琴  李静

方案设计  马琴  李静  孙雨薇  刘言凯  韩江月

建筑专业 张伟玲  孙雨薇   曹桦    顾闻

结构专业 贾文颖  张剑涛  周韶毅  杜敬贤  刘孟奇 

设备专业 李京沙  贺舒  沈径伊

电气专业 马霄鹏  邵子尧  刘云强

给排水专业 匡杰  范改娜  沈晨  尹腾文 

总图专业 曹桦

景观专业 翁龙冉  付爽  王梦舟(方案)

                 樊志惠   韩雪丽   郭文杰(施工图)

经济专业  杨冠杰


合作单位  深圳市郑中设计股份有限公司

来源:中国建筑设计研究院有限公司,本文照片由希尔顿酒店管理集团提供