编辑: | 2023-04-04
由法国建筑大师让·努维尔主持设计,同济设计集团建筑设计一院全过程配合落地的星美术馆,于2022年12月底正式开馆。这个上海西岸美术馆大道最北端的新“星”,将以老建筑的记忆为起点,承续工业建筑的精神,唤醒场地的历史,创造更诗意的未来。
▲ 隔江相望
▲ 沿江鸟瞰
▲ 西侧主入口
▲ 北侧人视图
▲ 室内通高展厅
▲ 隔江相望
项目背景与设计理念
项目基地位于上海市徐汇区瑞宁路111号,该片区原址是始建于1907年的南浦火车站,是当时全国三个可以进行水陆转运的站场之一。八一三事变后由货运转为客运,并更名为日晖港站。50年代定名为上海南站,80年代被改造成码头,成为当时上海铁路地区唯一拥有自备专用码头的车站。而随着世博会的到来,这个老火车站于2009年关闭。
基地内保留了一段铁轨、沿江龙门吊和一台火车头以及几节绿皮车厢,作为历史的见证,也给后续的设计带来了灵感。
▲ 历史照片 | 图片来源于网络
2014年星美术馆创始人,收藏家何炬星先生受邀筹建一座代表国际当代艺术前沿思考的美术馆,并邀请了法国普里兹克奖得主让·努维尔先生担纲设计。
星美术馆从设计、建设到使用经历了八年,让·努维尔先生在设计上延续了建筑的历史,长向的坡屋顶建筑有着银灰色的色调,带着工业遗存的气息与历史积淀的故事,呈现了设计的三个关键词:简单、纯粹、工业化。而多样化的展览空间模糊了室内外的边界,光线和材料的丰富运用更增添了美术馆的诗意。
▲ 建筑师手稿及效果图 | Ateliers Jean Nouvel
场地文脉与工业文明
原址上的货栈是存放货物的场地,而美术馆是展示艺术作品的场所。这两种空间本身就有共通之处,不同的是货栈保存为主,美术馆更注重展示。如何在货栈这一简洁的原型中创造出丰富适应性的展览空间一直是设计的出发点。
方案设计在保持原建筑面积和高度的前提下,保留了原建筑90米长的仓库原型和坡屋面形态。以美术馆及其辅助配套为基本功能,同时配置书店、休憩等向市民开放的休闲功能,来诠释独特的具有城市工业化进程的历史性记忆和象征意义。
▲ 爆炸轴测图
场地西侧原有的下沉花园被抬高扩大为入口前广场,为活动和展览提供了更宽阔的视野和形象;北侧的火车花园,利用了原有的铁轨和火车头及两节列车,结合景观花园创造了野趣的氛围;东侧室外展场保留了原有的构架形式,与树阵形成了独特的室外布展空间;南侧的滨江观景平台打开了与防汛墙之间的步行空间,与滨江公共空间有机地融为一体。

▲ 西侧主入口前广场

▲ 东侧室外展场
▲ 南侧滨江观景平台
▲ 北侧火车花园
场地内原有的两个龙门吊以独特的形态和鲜明的色彩与建筑融合,成为了新建筑的一部分,火车头和铁轨也在屋檐下的灰空间中创造了新的功能,这些工业遗迹的元素和新建筑的构造节点相互呼应,不仅勾起了场地的历史记忆,也是对于工业文明的一种新的传承。
▲ 龙门吊与建筑的对话
为了创造了一个独一无二的,公共性极强的展示形式,建筑的顶部漂浮着吊装艺术品的大平台。平台上放置的艺术展示品给整个西岸提供了一个城市和街区的亮点,它们给浦江,给周围街区,一个最直接的艺术与建筑不可分割的形象,创造了一个艺术与市民生活最直接的对话。
“它是全世界唯一一个在屋顶做展示的场馆,远远看去,它像直接漂浮在整个黄浦江面,让在西岸附近的市民,包括在黄浦江对面世博会的市民,都能够看到这里的艺术展览。”
与同样由努维尔设计的浦东美术馆不同。浦东美术馆沿江立面设置为巨幕,与黄浦江对岸的外滩万国建筑博览群交相辉映。不同于浦东美术馆的垂直界面,星美术馆打造了一片介于水天之间的平台,沿江面展开。延绵的水平界面是天与水的对话,是市民与展览交互的场所,展馆与城市的边界再次实现了突破。
▲ 浦东美术馆与星美术馆
灵活空间与精细设计
美术馆地上总建筑面积约1800平方米,在充满历史感的简洁坡屋顶下,衍生出了对应不同功能需求的新空间:通高展厅、无柱悬浮夹层展厅、屋顶平台展场、室外展场等等,自由多变的空间和展陈面积的最大化利用,对结构形式和设备集成提出了很大的挑战。

▲通高展厅、夹层展厅、室外展场和屋顶展场©Ateliers Jean Nouvel

▲ 夹层展厅、通高展厅、半室外展场
结构体系的确定
基于原始建筑布局,主结构采用与剖面一致的“介”形单榀钢架,并结合建筑功能,演化出屋面立柱平台、鱼腹梁夹层、吊挂夹层三种不同的结构变化。考虑到外立面玻璃幕墙和屋面天窗的通透性,取消工业厂房常规的墙面和屋面围护结构,采用纵向框架梁形成纵向抗侧体系。

▲ 结构体系和三种演化
结构构件和节点形式的确定
考虑到整体的工业化效果,梁柱的形式通过钢箱柱、工形柱、钢骨柱上部钢柱的比选,最后选定工形柱和工型梁的结构构件形式。钢柱考虑施工和运输分段,地上钢柱在屋面构造厚度内分段拼接,避免钢柱拼接节点外露,并通过拼接缩减出平台段柱尺寸。
▲ 梁柱形式
无柱悬浮夹层的舒适性构造
夹层展厅采用130直径吊柱,在满足承载的同时,纵向设置交叉拉索、横向设置拉杆保证吊挂展厅的使用舒适性,拉索和拉杆避开建筑通道和使用功能区域,对于无拉索拉杆的吊挂榀X型布置楼面梁。对于吊挂区域拉索拉杆和吊柱节点采用外露销轴连接,通过优化连接板增加节点观感。
▲ 无柱悬浮夹层结构体系
▲ 夹层展厅
▲ 工业化的细节
设备的集成
为了保证地上展陈空间的最大化和灵活性,各类设备用房整体设置在地下室。阶梯状的地下室轮廓既满足了防汛墙的退界要求,减少了地下室的造价投资,也能最大限度地利用紧凑空间设置多套不同的系统,来分别服务于不同使用要求的区域。
考虑到屋顶大面积采光天窗与室内温湿度稳定要求的矛盾、空调风系统与简洁的室内效果之间的矛盾、建筑沿江导致相对湿度较大的不利因素。在方案设计时就需要反复计算模拟围护结构、太阳辐射、参观人员等各种因素来确定合理的送风量,以确保在满足室内温湿度要求的前提下尽量减小空调设备的占用空间以及竖向井道对室内布局、展览空间的影响。同时细化空调服务区域,一方面考虑到不同区域运行的灵活性,另一方面可减小单个系统容量以及设备的尺寸,以便将所有设备均设置于净高有限的地下室。
▲ 设备集中于地下打造一层自由平面
考虑到室外相对湿度较大的因素,空调系统采用新风集中处理、再送入服务于不同区域的空调机组,以确保空调机组全年运行工况的稳定,进而实现其送风温、湿度的稳定。
空调送风方式主要采用地送风与地位侧送风相结合的形式,以减少竖向井道数量,回风方式采用高位回风,采用条形回风口,尽量减小其高度以充分弱化其对室内展览效果的影响,同时下送上回的气流组织也最大限度的起到了节能效果,解决上送风形式冬季在人员活动区效果不佳的问题。

▲ “消失”的服务空间
材料应用与细部表达
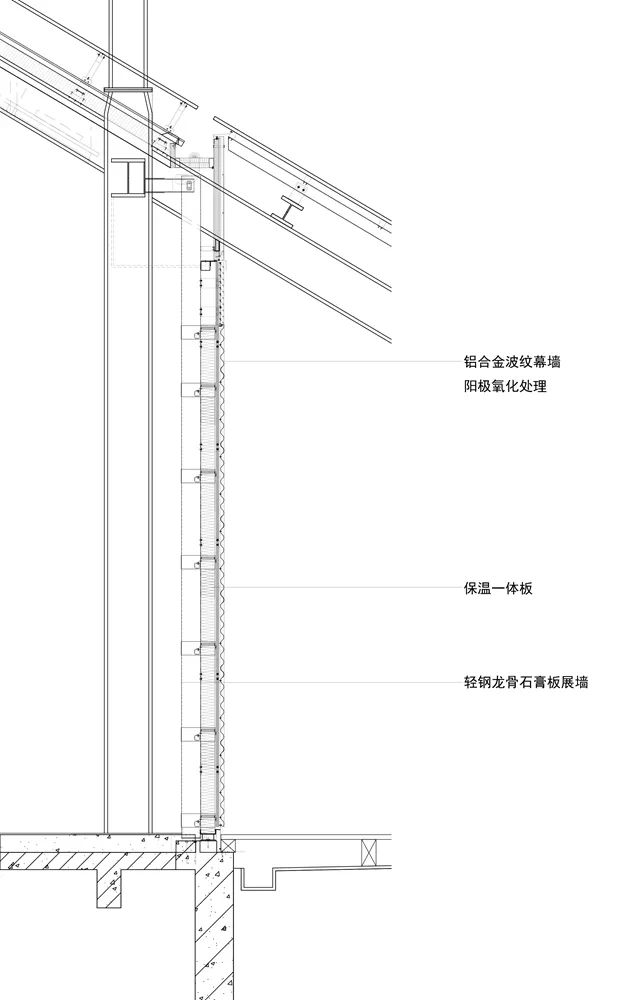
外立面的材料诠释工业建筑的风格,并且希望统一和谐并呈现丰富多彩的变化,因此屋面和立面采用了铝合金波纹板,单个板块最长尺寸达到了9米,表面阳极氧化处理,反复调色后,使得金属幕墙随着光线的变化呈现着不同的周围的景物。结合内部的保温一体板,模块化的幕墙设计不仅安装简单方便,也保证了室内的环境舒适。
▲ 立面幕墙构造示意图
在结构断面直接外露的山墙面上,将屋面板和主体结构梁分离,使得屋面仿佛悬浮在结构之上营造漂浮的屋面效果。
▲ 屋面板与主体结构脱离

▲ 结构外露的山墙入口
而在坡屋面两侧深远的檐下出挑处,将卸下悬挑的钢梁端部进行变截面处理。而变截面的具体形态也进行了T字型和工字挑梁比选。最终选用了工字型变截面钢梁,既保持了结构延续性,同时使得出挑的檐下空间更显轻盈。

▲ 挑梁端部效果对比
▲ 轻盈而深远的檐下
屋顶艺术平台的连桥,通过平梁式、拱梁式、借用扶手的桁架式进行比选,最终确定了平梁形式,并主梁内收减少视觉厚度,使得屋顶展场之间的连廊漂浮在空中。
▲ 漂浮的连桥
为了满足采光和排烟需求,屋面上设计了大量的采光天窗和排烟窗,大幅的玻璃滑门和顶部小型的玻璃采光天窗,让室内外视线和光线互相变换。
坡屋面天沟结合幕墙设置,在满足屋面雨水安全排放的前提下保证屋面幕墙外观连续性。
▲ 金属屋面构造示意图
▲ 光线从天窗直接进入展厅
▲ 隐藏在屋面下的排水沟
结 语
同济设计集团作为国内配合落地的设计院,从设计阶段的协调和深化技术解决方案,到施工阶段落实各种细节,都不遗余力地追求贯彻方案的概念和效果。
通过设计阶段的搭建模型和施工阶段的建造样板段,对材料和构造节点反复的推敲,打磨每一个细节并制定施工执行方案,确保施工方能够实现设计的创意,最终与各方共同实现实现国际高品质建筑的初衷。
▲ 结构样板搭建
▲ 幕墙样板搭建
▲ 施工过程
星美术馆开馆后成为了徐汇滨江“西岸文化走廊”上第七座面向公众开放的文化艺术场馆,也是上海“一江一河”沿线设计的又一全新艺术地标。他以极具辨识度的经典空间形态,独特的展览形式,将历史记忆引入到当下的城市生活和环境中,也成为了人与艺术,城市与文化的对话交流平台。
何炬星在开馆之序中写到:“艺术之源源在人之初,艺术之远远于人之灭,艺术命运之关怀研究无往无尽”。虽名为星光,然闪烁于水天之间,穿越于古今之迹;货栈脱身于过去,转身向未来,映照水天之间无尽景色与人潮。
▲ 树木掩映下的星美术馆
▲ 暮色中的星美术馆
项目档案
项目名称:星美术馆
项目地点:上海市徐汇区瑞宁路76号
建筑面积:1777 ㎡
设计时间:2017-2022 年
建成时间:2022年
方案设计团队:法国让·努维尔事务所
中方设计团队:同济大学建筑设计研究院(集团)有限公司建筑设计一院
项目负责人:曾群
建筑设计: 韩佩菁、江歌缘、马忠、吕梦菡
结构设计:洪文明、钟毓仁、贾国庆、李广、谢轩
暖通设计:张华
给排水团队:施锦岳
电气设计:朱轶聪、施国平
幕墙设计:阿法建筑设计咨询(上海)有限公司
泛光设计:瑞国际照明设计
机电顾问:迪索工程咨询(上海)有限公司
室内设计:王文武
建筑摄影:章勇
来源:同济设计微信公众号