编辑: | 2018-12-25

项目简介:
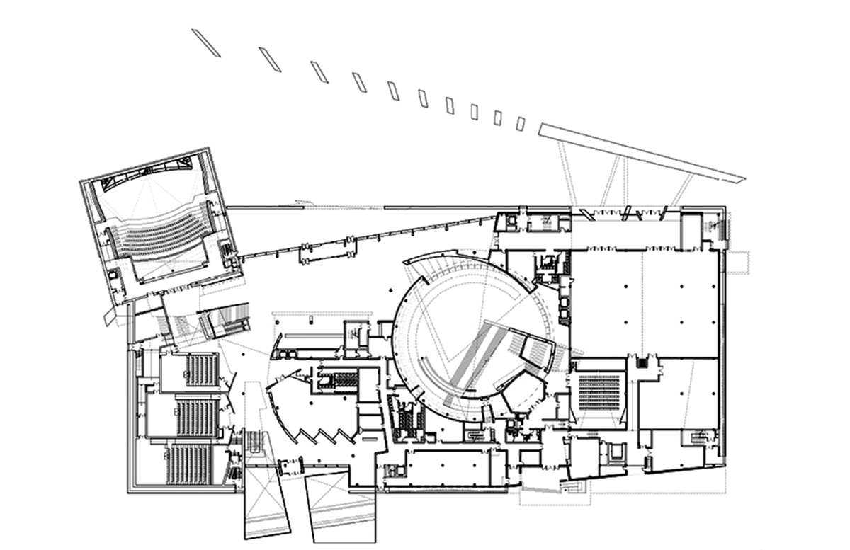
中国电影博物馆是一个以中国电影艺术成就为主题,集博览、展示、交流、仪典、娱乐等功能为一体的国际化电影文化中心,位于规划建设中的北京影视城内。设计从周围场地环境及电影艺术的特征入手,在艺术与娱乐、虚拟与现实之间,采用大众化通俗的语汇、用建筑设计手法给观众诠释电影的经历,让参观者仿佛置身于电影之中、游走于虚拟与现实之间。以建筑语言演绎银幕前后的行为与表现,最终将强烈的视觉效果升华为综合的全方位体验。




Datasheet | |
Official Title of Project (Chinese): 项目名称: | 中国电影博物馆 |
Official Title of Project (English): | China National Film Museum |
Location: 地点: | 北京 |
Project Date: 项目日期: | 2002-2005 |
Stutas: 状态: | 竣工 |
Architect / Studio: 建筑师\工作室: | 张宇/北京市建筑设计研究院有限公司 |
Collaborator: 合作机构: | RTKL |
Client: 业主: | 北京市广播电影电视集团 |
Main Use 用途: | 博物馆展厅 |
Site Area: 用地面积: | 10400平方米 |
Total Building Area: 总建筑面积: | 37930平方米 |
Floor: 楼层: | 5层 |
Main Structure: 主要结构: | 钢结构 |