李兴钢 景泉:“仓阁”——首钢工舍智选假日酒店设计

编辑: | 2023-03-17

图片

▲ 主创建筑师:李兴钢 景泉

▲ 首钢工舍-视频



图片

▲ 鸟瞰


图片

▲ 大堂吧


图片

▲ 爆炸图


图片

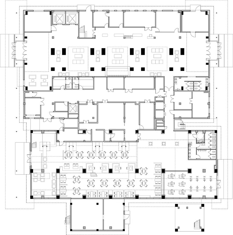
▲ 首层平面图


图片

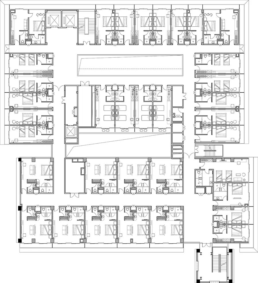
▲ 客房层平面图

“仓阁”——首钢工舍智选假日酒店设计始于2015年11月,2018年7月竣工。位于首钢老工业区北部,原为一高炉空压机站、返焦返矿仓、低压配电室、N3-18转运站等4个工业建筑,改造后成为一座经济型酒店,同时为紧邻的北京2022冬奥组委办公区员工提供倒班住宿服务。


图片

▲ 改造前后对比1:外观(改造后)

图片

▲ 改造前后对比1:外观(改造前)

图片

▲ 改造过程1:对原建筑进行结构检测和分析


图片

▲ 改造过程2:拆除无法利用的部分 拷贝


图片

▲ 改造过程3:植入新的承重体系


图片

▲ 改造过程4:搭建楼板


图片

▲ 改造过程5:墙体


图片

▲ 改造过程6:坡屋顶和雨蓬

设计最大限度地保留了原来废弃和预备拆除的工业建筑及其空间、结构和外部形态特征,将新结构见缝插针地植入其中并叠加数层,以容纳未来的使用功能:下部的大跨度厂房——“仓”作为公共活动空间,上部的客房层——“阁”漂浮在厂房之上。被保留的“仓”与叠加其上的“阁”并置,形成强烈的新旧对比。同时,“仓”的局部增加了金属雨篷、室外楼梯等新构件,“阁”则在玻璃和金属的基础上局部使用木材等具有温暖感和生活气息的材料,使“仓阁”在人工与自然、工业与居住、历史与未来之间实现一种复杂微妙的平衡。


图片

▲ 改造前后对比2:全日餐厅(改造后)


图片

▲ 改造前后对比2:全日餐厅(改造前)


图片

▲ 立面图-北

图片

▲ 立面图-东


图片

▲ 立面图-南

图片

▲ 立面图-西

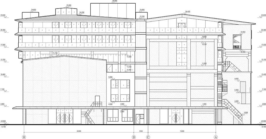
图片

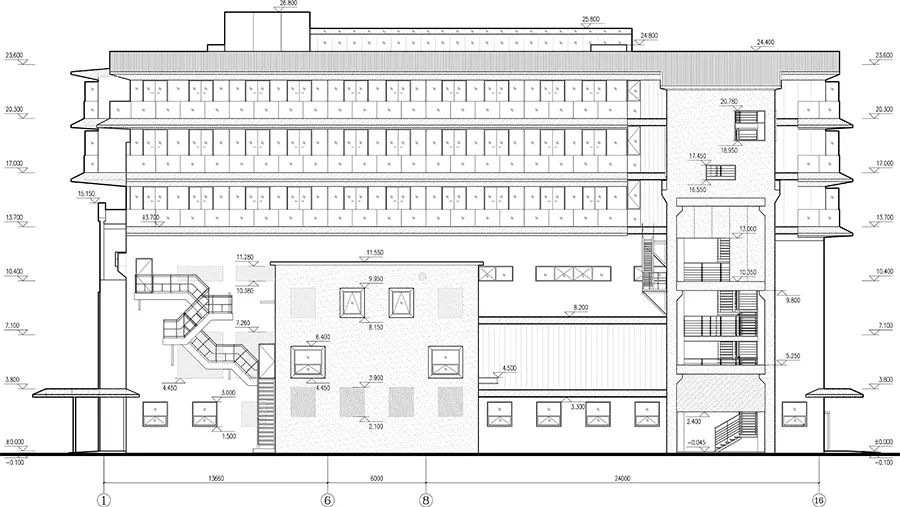
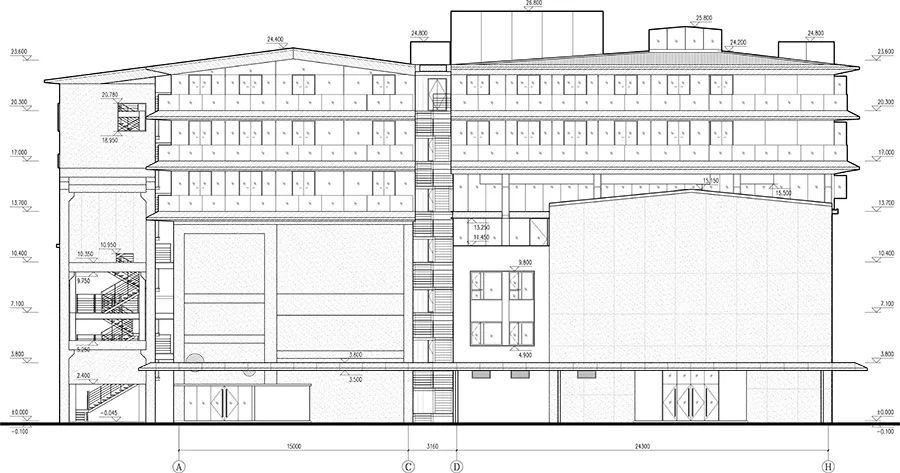
▲ 剖面图

新旧建筑相互穿插创造出一个令人兴奋的内部世界:“仓阁”北区由一高炉空压机站改造而成,原建筑的东、西山墙及端跨结构得以保留,吊车梁、抗风柱、柱间支撑、空压机基础等极具工业特色的构件被戏剧性地暴露在大堂公共空间中,新结构则由下至上层层缩小,屋顶天光通过透光膜均匀漫射到环形走廊,使整个客房区域充满宁静氛围,错落高耸的采光中庭在“阁”内形成颇具仪式感的“塔”型内腔,艺术灯具从天窗向下垂落,宛如一片轻盈虚透的金属幔帐,柔化了宁静硬朗的空间形式,与原始粗犷的工业遗存形成鲜明对比;“仓阁”南区由原返焦返矿仓、低压配电室、N3-18转运站改造而成,3组巨大的返矿仓金属料斗与检修楼梯被完整保留在全日餐厅内部,料斗下部出料口改造为就餐空间的空调风口与照明光源,上方料斗的内部被别出心裁地改造为酒吧廊,客人穿行其间,获得独一无二的空间体验;客房层出檐深远,形成舒展的水平视野,在阳台上凭栏远眺,可俯瞰改造后的西十冬奥广场和远处石景山的自然风光。


图片

▲ 改造前后对比3:酒吧(改造后)


图片

▲ 改造前后对比3:酒吧(改造前)


图片

▲ 改造前后对比4:全日餐厅(改造后)


图片

▲ 改造前后对比4:全日餐厅(改造前) 

设计过程中,建筑师与结构工程师密切配合,对原建筑进行全面的结构检测,确定了“拆除、加固、保留”相结合的结构处理方案;使用粒子喷射技术对需保留的涂料外墙进行清洗,在清除污垢的同时保留了数十年形成的岁月痕迹和历史信息。


图片

▲ 门厅


图片

▲ 客房层


图片

▲ 中庭

“仓阁”是西十冬奥广场各单体中旧建筑保存最完整的一座,设计尊重工业遗存的原真性,延续首钢老工业区的历史记忆,通过新与旧的碰撞、功能与形式的互动,使场所蕴含的诗意和张力得以呈现,它曾经是首钢厂区生产链条上不可或缺的一个节点,今天则是城市更新的一次生动实践,并与北京2022冬奥会的可持续理念高度契合。


图片

▲ 原转运站被改造为楼梯间


图片

▲ 室外楼梯




主创建筑师

◆ 李兴钢

全国工程勘察设计大师,第十届梁思成建筑奖获得者。现任中国建筑设计研究院有限公司总建筑师,教授级高级建筑师,中国建设科技集团大型复杂建筑研究中心主任,天津大学博士生导师,清华大学建筑学院设计导师,上海交通大学等多所大学兼职教授。长期从事大型复杂建筑设计研究与实践,创立了以“胜景几何”理论和“工程建筑学”方法为核心的建筑与环境交互设计理论、方法和技术体系,主持完成了以北京“双奥”主场馆为代表的多项国家重大工程设计项目——包括国家体育场“鸟巢”和北京冬奥会延庆赛区及国家雪车雪橇中心、国家高山滑雪中心等,其他代表作品包括元上都遗址博物馆、绩溪博物馆、天津大学新校区综合体育馆、唐山第三空间、首钢工舍等,形成了有中国特色的当代建筑创新体系。作为第一完成人,获国际奥委会和国际体育与休闲建筑协会联合金奖1项,亚洲建协建筑金奖1项,国家优秀工程设计金奖1项、银奖2项,全国优秀工程设计行业一等奖4项,中国建筑学会建筑创作大奖7项、创作金奖3项,省部级优秀工程设计一等奖16项。先后被授予中国青年科技奖、全国最美科技工作者、新世纪百千万人才国家级人选、中国青年建筑师奖、全国五一劳动奖章、北京奥运会和残奥会先进个人、北京奥运工程建设功臣、北京奥运会和冬奥会火炬手等个人奖项和荣誉。


◆ 景泉
现任中国建筑设计研究院有限公司副总工程师,建筑一院院长,教授级高级建筑师,中国建设科技集团既有建筑更新与再利用中心主任,“百千万人才工程”国家级人选,“十三五”“十四五”国家重点研发计划项目课题负责人,清华大学建筑学院设计导师,兼任住建部、民政部等多部委专家,北京、重庆、西安等地规划委员会专家。从事建筑设计25年来,作为设计主持人承担多项国家及地区大型公共建筑项目,包括重庆国泰艺术中心、广西南宁园博园建筑群、2019北京世园会中国馆、北京大运河博物馆、重庆朝天门改造等,获国际奖2项,省部学会奖30余项。在本土设计理论基础上提出“在地生长”设计理论,解决了重大工程建设技术难题,完成技术推广应用及创新。


项目信息

项目名称:“仓阁”——首钢工舍智选假日酒店

项目地点:北京市石景山区

业主单位:首钢集团有限公司

设计单位:中国建筑设计研究院有限公司

主创建筑师:李兴钢、景泉

设计团队:(建筑)黎靓、郑旭航、涂嘉欢、张文娟、高阳、李秀萍、谭泽阳;(结构)王树乐、郭俊杰;(给排水)申静、郝洁;(暖通)祝秀娟;(电气)王旭、高学文;(室内)曹阳、马萌雪

施工单位:北京首钢建设集团有限公司

用地面积:2874平方米

建筑面积:9890平方米

结构形式:钢结构、钢筋混凝土框架结构

设计时间:2015.12-2016.07

竣工日期:2018.05


图文由中国建筑设计研究院有限公司提供

编辑|中设协建筑设计行业网

-END-