编辑: | 2021-12-03
2016年9月,国务院办公厅发布《关于大力发展装配式建筑的指导意见》(国办发〔2016〕71号)(以下简称《指导意见》)。《指导意见》提出,大力发展装配式混凝土建筑和钢结构建筑,在具备条件的地方倡导发展现代木结构建筑,不断提高装配式建筑在新建建筑中的比例。为全面贯落实《指导意见》,中国建设科技集团所属中国建筑设计研究院有限公司作为行业技术的领军企业,积极树立新发展理念,推动企业强基固本,促进建筑行业创新赋能、转型升级,长期以来致力于推动建筑工程本土化、人性化、智慧化、长寿化和低碳化的五化理念,引领建筑设计行业全面发展。

2021年11月10日,中国建设科技集团股份有限公司在北京组织召开项目验收会,对中国建筑设计研究院有限公司承担的中国建设科技集团科技创新基金项目《新型钢筋混凝土住宅产业化关键技术研究》(项目编号:Z2016J14)进行了验收。项目验收委员会认为:项目研究成果具有科学性和创新性,社会、经济、环境效益良好,达到国际先进水平。
验收专家委员会由钱稼茹教授担任专家组组长,李晨光、武振、李宏、徐福全、叶飞、徐斌等专家学者担任委员。中国建设科技集团科技质量部焦贝贝主持会议,项目负责人全国工程勘察设计大师、建设科技集团总工程师任庆英参会并发言,张晓萌博士汇报了研究成果,刘文珽教授级高工等项目研究团队全体人员参加了会议,并回答了专家质询。
项目组结合未来住宅建筑的发展趋势、装配式混凝土结构仍存在的一系列技术难题以及多年设计经验和研究成果,通过对新型钢筋混凝土盒子结构住宅体系成套技术的自主研发,提出了适用于钢筋混凝土盒子结构住宅的新型墙体、楼板及关键节点构造,通过对墙体和楼板的试验研究、数值模拟及理论分析,形成了该结构体系的关键技术。在此基础上形成了新型钢筋混凝土结构住宅产业化关键技术研究报告4部,并在国内外期刊发表论文7篇,其中3篇为SCI,4篇为EI检索,针对核心技术申请发明专利1项和实用新型专利3项。
创新1:项目研发了新型钢筋混凝土盒子结构住宅体系,提出了该体系的组成、连接方法、构造形式和施工技术。
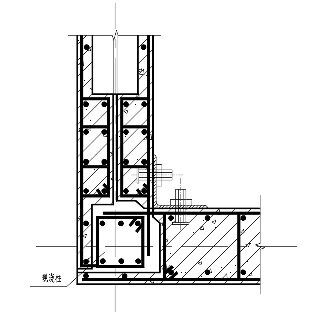
本项目为了在建筑中实现住宅生产的标准化、模块化、产业化,促进住宅产业化发展,推动装配化结构体系的发展,研发了一种预制装配式钢筋混凝土住宅结构体系-钢筋混凝土盒子结构住宅,通过深入研究,形成了成套的装配式住宅技术,可用于工程实践。本项目研发的钢筋混凝土盒子住宅结构体系,把墙体分成两半,做成两片槽形墙板,既是受力构件,又代之为模板,通过盒子装配的模式规避了目前混凝土装配式建筑结构连接难点和弊端。
四片槽形墙板,用连接角钢和支撑临时围成盒子,整体吊装,由于其稳定,故吊装速度快,随即吊装楼板,盒子之间自然形成带空腔的墙芯柱和楼层暗梁,无需支模,只要按现浇混凝土结构相同方式绑扎钢筋,浇灌混凝土,也无需覆盖养护。预制构件通过现浇连接成整体,成为装配整体式结构。盒子组装通过角钢及支撑连接,可拆除重复使用。具有产业化程度高,施工速度快,减少劳动力,绿色环保,自重轻,经济造价低等一系列优点。
盒子结构吊装示意图
盒子结构拼装示意图
创新2:项目通过对该新型盒子结构剪力墙的足尺模型拟静力试验研究,揭示了其破坏模式、受力机理、滞回性能,提出了该剪力墙的承载力计算方法,为工程应用奠定了理论基础。
本项目通过对单片组合墙体进行低周反复荷载试验,总结此结构的破坏模式及抗震特点,包括:承载能力、骨架曲线、强度、刚度、延性和耗能等抗震指标的对比分析;通过对装配式双向密肋楼板进行静力加载试验,得出楼盖的荷载-挠度曲线,裂缝分布,验证楼板强度、挠度、裂缝及承载力性能,为盒子结构住宅的楼盖设计提高了理论依据。
试验照片
构件示意图
项目研究利用有限元方法对钢筋混凝土盒子结构抗震试验进行了模拟,验证了试验的准确性和可靠性。在此基础上还进行了参数化分析,分析不同混凝土强度、墙体厚度、轴压比等相关参数对钢筋混凝土盒子结构受力性能的影响以及钢筋混凝土盒子结构的工作机理,同时推导出了盒子住宅结构墙体的抗剪、抗弯承载力计算公式,建立了墙体的简化恢复力模型,提出了墙体的抗震构造措施以及相关计算公式,为后续试点工程的建设实施奠定了理论基础。
ABAQUS有限元软件模拟墙体、端柱、钢筋骨架示意图
ABAQUS有限元软件模拟结果
验收专家委员会专家高度认可项目组的研究工作,一致评价研究成果总体上达到国际领先水平。下一步课题组将在验算专家建议的基础上深化课题研究、寻求合作单位争取早日能够完成试点工程的建设。
未来中国院会充分发掘自身优势和能动性,继续发挥装配式研究和试点示范工程的提升带动作用,提升从业人员对装配式建筑的重视和了解程度,力争推动装配式建筑的发展水平,促进行业整体进步。
来源:中国建筑设计研究院有限公司